Home
Shopping portal
Fund raising
- Fund raising events
- Extension plans
The Church
Community
Donate now
Be a whizz
Fun & family stuff
Questions on this site
Mailing list
Press

 

bookmark this page

 

 

 

 

 

extension plans

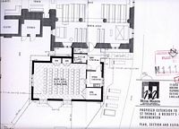
The Church extension has now received from planning permission from Monmouthshire County Council. We await final sign-off from the Monmouth Diocese. These are the formal extension plans as approved by MCC. Click on the image to get a larger image in a new window.

 

Plan view. This is a plan view showing the proposed extension in relation to the body of the church. It can be seen that the extension will occupy the site used for Marques in the summer and there will be an entrance from inside the church and a separate external entrance. The new facilities include: main hall, storage, two toilets and a kitchen.

 

Plan view

West elevation

Plan view

North elevation

Plan view

East elevation

Plan view

Car Parking

Plan view

 

Thank you for supporting Shirenewton Church

 

Copyright 2003-2005 by David Cornwell and other contributors. All Rights Reserved. Site design: nrgsmith
All views represent the opinion of the authors and the information contained in this website is provided purely for information purposes and is provided 'as is' without warranty either expressed or implied.

Comments, suggestions, etc. Contact webmaster.

Please click here to read full disclaimer and conditions of use